In 2014, Allied Works was selected as a finalist for the Metropolitan Museum of Art’s new Modern and Contemporary Galleries in New York. The museum is an evolving civic edifice—the new wing will create additional exhibition space for the Met's growing collection, and will improve public access, visitor experience and connection—it is an opportunity to build upon a 140-year architectural and artistic conversation.

Allied Works’ vision for the Modern and Contemporary Wing extends an invitation to New York City and the world: with a gracious plaza and public entry, it is conceived as a Pavilion in the Park, a new gateway and gathering place for the Museum. This pavilion will serve as a bridge that will re-connect the city’s most iconic landscape with its most renowned institution.

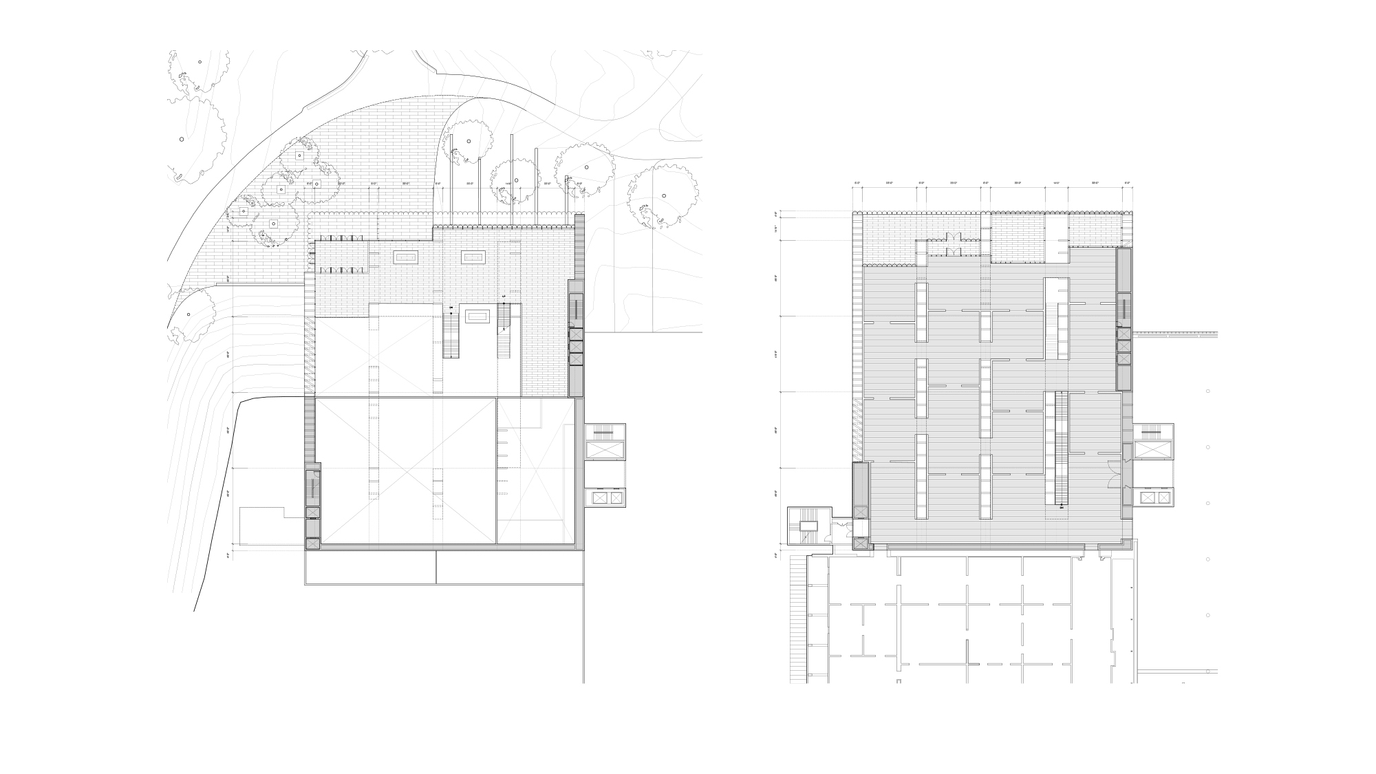
The goal and inspiration is to create galleries of perfect scale, proportion, and light; a varied spatial palette for the installation and experience of the collection. The concept represents the merging of two worlds—the Park and the Museum—with light as the force that binds. First, light follows the force of gravity, filtering down through the open concrete frame and into the galleries below. Second, the facades act as overlook and lens. A series of terraces and overlook galleries offer views into the Park from every floor, creating intervals of reflection and repose in the museum experience. Enclosed in a veil of translucent and transparent glass, the facades filter and shift light, lending new energy and visual connection.

Within, the Pavilion is organized as five levels united by light, structure and clear circulation. Visitors enter from the Park, offering direct access to the Special Exhibition level and two floors of new galleries for the collection. The open structural module gives proportion, rhythm and presence to the galleries while providing for a high degree of flexibility and variation. Above, a dedicated member’s level and a public roof garden and café offer spectacular views of the park and the city beyond.