After a statewide search and ideas competition, Allied Works was selected to design a new museum for the Benton County Historical Society in Corvallis, Oregon. The Museum showcases a growing collection comprised of cultural artifacts, natural history specimens, and archives entrusted to them by Oregon State University. The Society sought to elevate its visibility in the region by creating new galleries and interpretive spaces in the heart of the central Willamette Valley. The Museum will create new perspectives into the objects and the history of the region through a range of curatorial strategies, and bring new educational, social and cultural opportunities to the community.

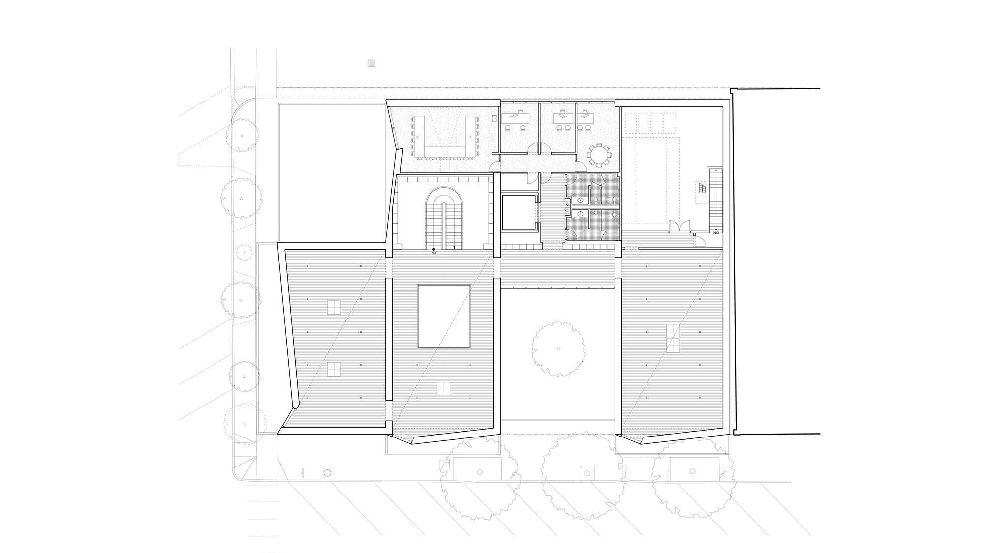
Located opposite a 125-year-old general store and the former territorial capital of Oregon, the new, 19,000 s.f. museum asserts a contemporary presence, while respectfully complementing these sites through massing, material and detail.

Four parallel structural bays echo the scale and meter of the neighboring storefronts, while facades of ceramic tile re-interpret the masonry building traditions of the historic downtown core. The building embraces the street, inviting the public into the lobby and exhibit hall, museum store, classroom and event space and a public courtyard. Glimpses into the galleries are seen from the principal cross streets, as projecting bays and windows fold out over the sidewalk.

Within, visitors are guided up a grand stair into a series of interconnected galleries. The galleries occupy clear-span bays bisected by clerestories providing controlled daylight to accommodate the varied nature of the collection. Inside and out, the Corvallis Museum presents an inspired dialogue of art and history, and a new model for local and regional institutions throughout the country.